527 Edward Street

Friend NE, 68359
5 Bed
3 Bath
2 Garage
3,312 Sqft
Pending Sale
$415,000
Est. Mortgage $1,345.00 / mo

About 527 Edward Street

MLS ID#22606722
Listing courtesy of: Home & Country LLC


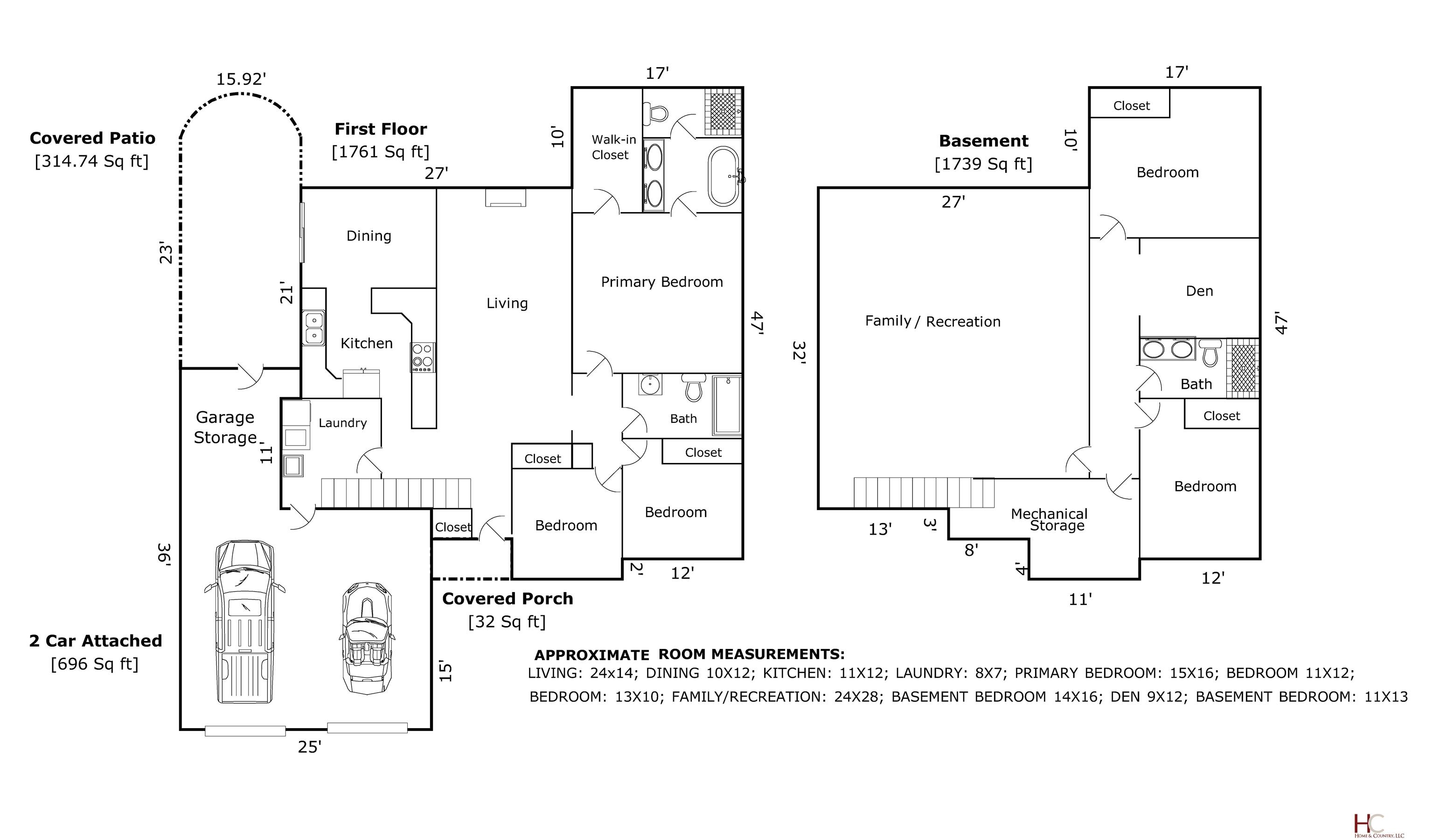
LOCATION; QUALITY; WELL MAINTAINED; LARGE PRIMARY BR AND BATH; OUTDOOR LIVING SPACE; FIREPLACE; AMPLE LIVING SPACE; WOOD FLOORS This beautiful home “checks off all the boxes”, and with 1761 square feet plus a full finished basement there is ample room. The lot has undeveloped space on either side, so there is plenty of wide open space! The living spaces inside the home are also large with the main floor living room having a gas fireplace and the basement has a huge family/recreation room - great for entertaining. The primary bedroom is large enough for your king sized bed, with walk-in closet and the primary bath has a jetted tub, tiled shower and double sinks. The kitchen is well laid out with all modern appliances included. You will love the convenient laundry room with sink right off the garage. Those of you who work from home or love your hobbies will want to check out the den in the basement. What more could you want in a home??

Facts & Features

Bedrooms
5 Bedrooms
Bathrooms
3 Bathrooms
Garages
2
Sqft (Total)
3,312 Sqft
Sub Division
City of Friend, Palky S/D
Year Built
2006
Style
Ranch
School District
Friend
Elementary
Friend
Middle School
Friend
High School
Friend

Interior

CoolingCentral Air
Fireplaces1
Other Featuresn/a
HeatingNatural Gas, Forced Air
AppliancesRange, Refrigerator, Washer, Dishwasher, Dryer, Disposal

Exterior

Roofn/a
ExteriorSprinkler System
Other Featuresn/a
Garage Typen/a
Garage Spaces2

Mortgage Calculator

Est. Mo. Payment:   $1,234.00

Loan Payment
$0000.00
Mortgage Insurance
$0000.00
Taxes
$0000.00
%

This is not a commitment to lend. Not all borrowers will qualify. This is for illustrative purposes only and estimates are based on information you provided. Interest rates, mortgage insurance rates, and programs are subject to credit approval and available rates and terms will vary, sometimes drastically, based on borrower eligibility and program selected. For accurate interest rates and mortgage insurance rates please contact your mortgage consultant. For illustrative purposes FHA/VA and USDA loan amounts will include an estimate for the financed upfront MI amount.

The data relating to real estate for sale or rent on this web site comes in part from participation in IDX of one or more Multiple Listing Services. The listing broker is shown on each property’s page. Some properties which appear for sale on this web site may subsequently have sold or may no longer be available. All information provided is deemed reliable but is not guaranteed and should be independently verified. IDX information is provided for consumers’ personal, non-commercial use, and may not be used for any purpose other than to identify prospective properties consumers may be interested in purchasing. Listing information copyright 2026.

Financing Contact
Copyright © 2026 Nebraska Realty. All rights reserved.       Terms of Service     Privacy Policy     Agent Login   Accessibility Statement