28001 Heron Circle

Valley NE, 68069
4 Bed
4 Bath
4 Garage
4,445 Sqft
For Sale
$1,450,000
Est. Mortgage $1,345.00 / mo

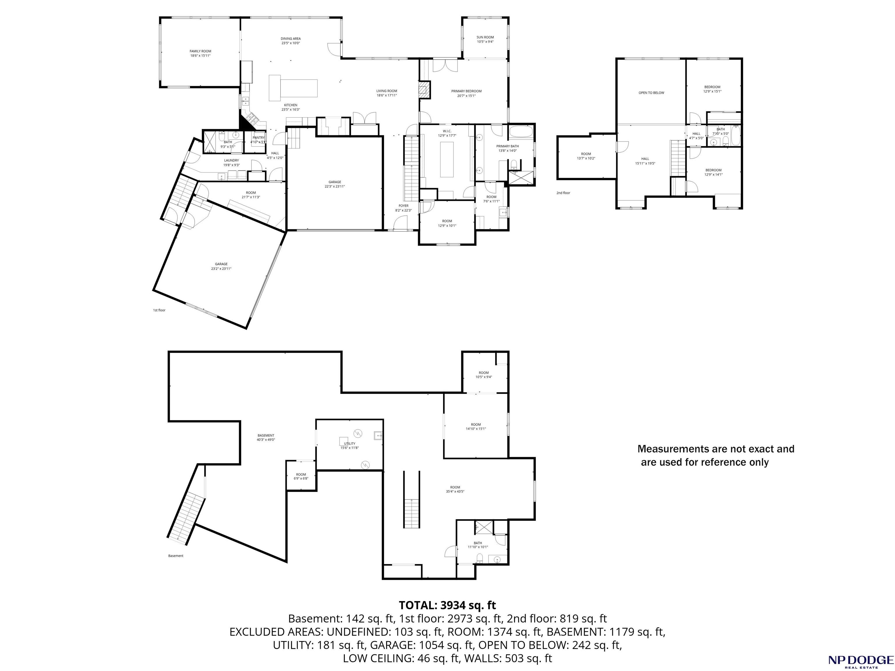
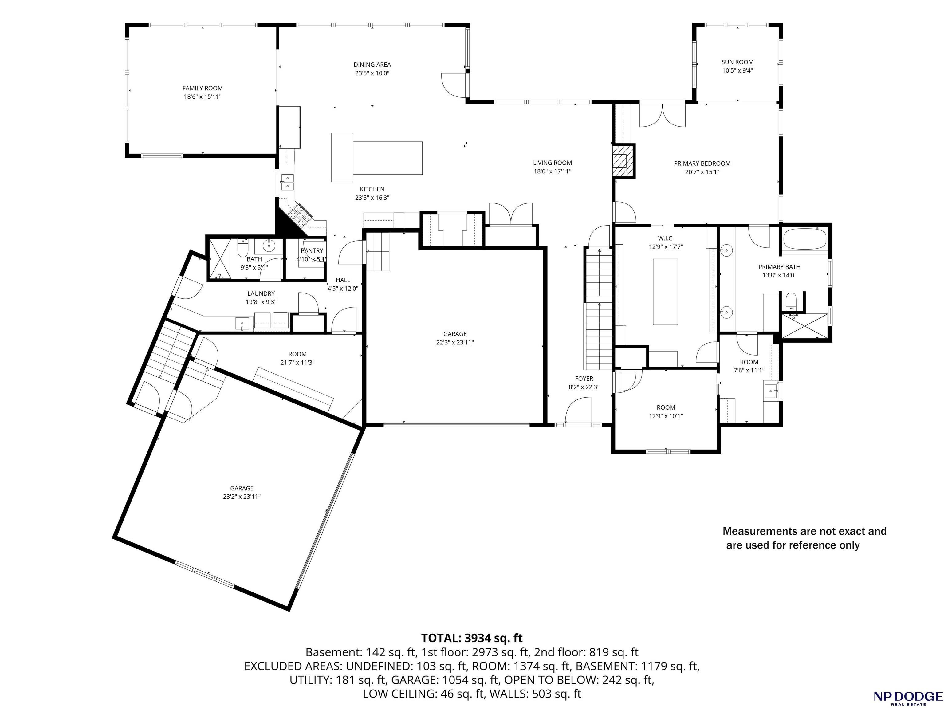
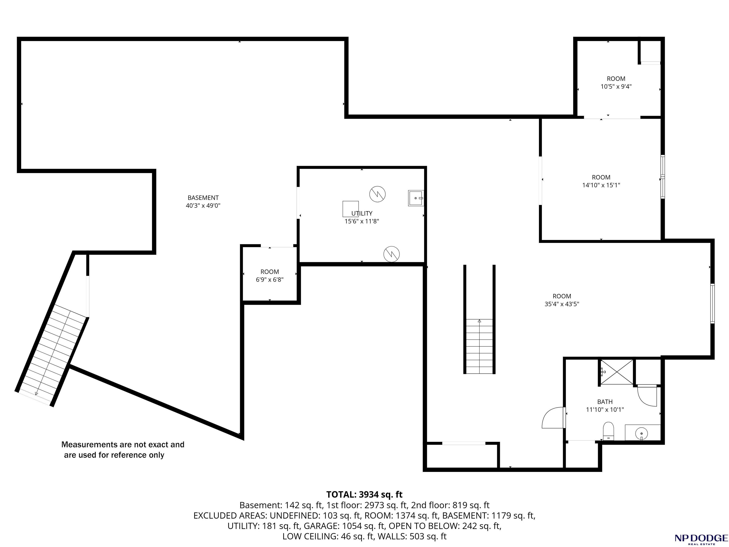
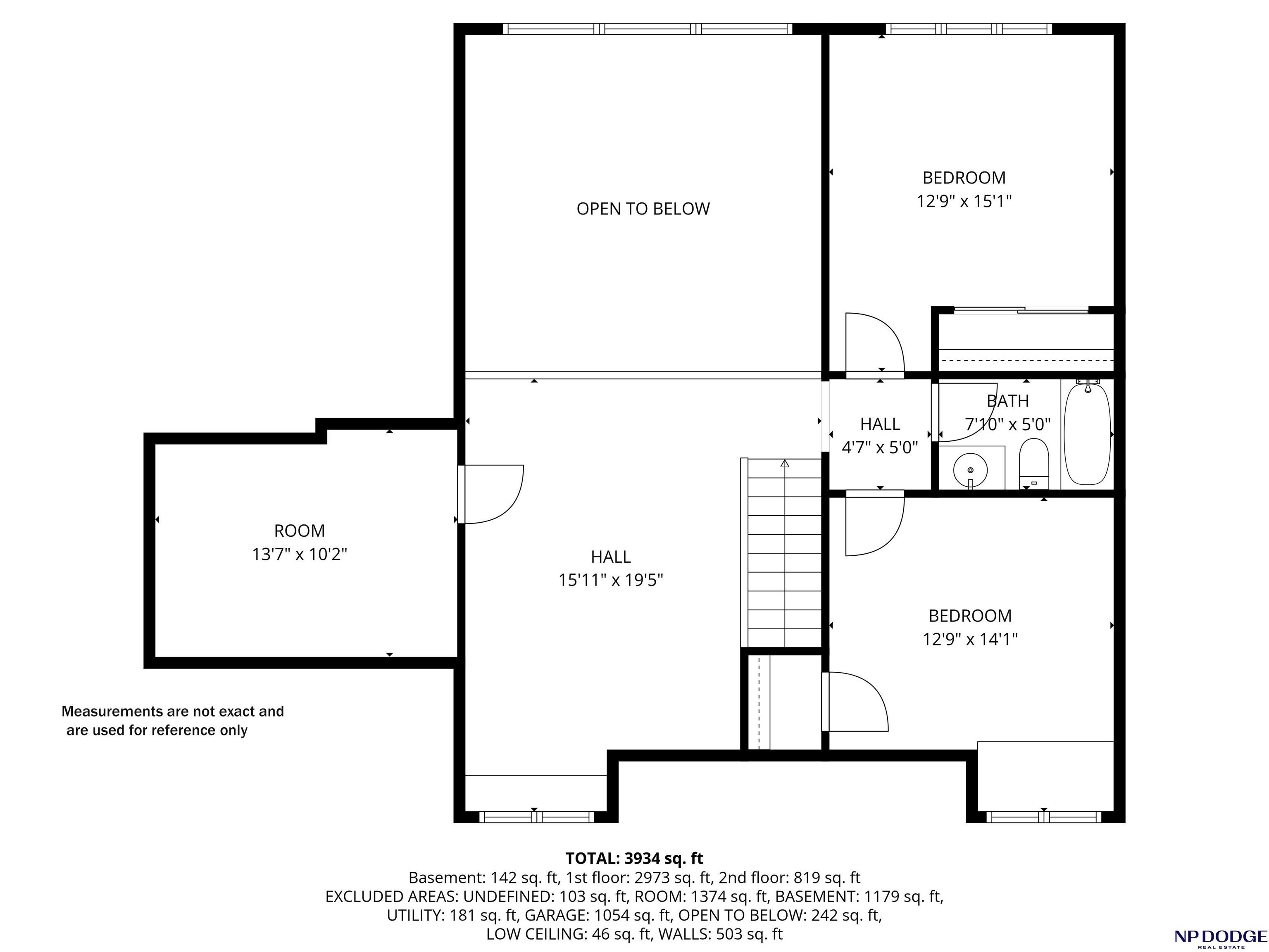
About 28001 Heron Circle

MLS ID#22608821
Listing courtesy of: NP Dodge RE Sales Inc 148Dodge
Contact information: 402-679-0007


Lake living at its finest in Valley Shores! This beautifully designed 1.5-story home features 4 bedrooms, 4 bathrooms, 2 laundry areas, Pella windows with integrated blinds, and 10-foot ceilings on the main level with luxury finishes and fresh interior paint. The primary suite offers a private retreat with deck access, sitting room, expansive walk-in closet with custom pull-outs, and scenic lake views. The kitchen blends style and function with a gas cooktop, double ovens, luxury refrigerator, French pantry, walk-in pantry, and abundant storage. Enjoy the great room with 18-foot ceilings, a sunroom, or entertain in the outdoor kitchen area with access to a private floating dock. The heated 4-car garage includes drains, hot/cold water, and a 220V outlet. Updates include HVAC (2025), Decra roof and garage doors (2026), plus geothermal-ready plumbing. Experience exceptional lake living in a home designed for comfort, style, and entertaining. AMA

Facts & Features

Bedrooms
4 Bedrooms
Bathrooms
4 Bathrooms
Garages
4
Sqft (Total)
4,445 Sqft
Sub Division
Valley Shores
Year Built
2010
Style
Traditional
School District
Douglas County West
Elementary
Douglas County West
Middle School
Douglas County West
High School
Douglas County West

Interior

CoolingCentral Air, Whole House Fan
Fireplaces1
Other FeaturesHigh Ceilings, Exercise Room, Ceiling Fan(s), Garage Floor Drain, Pantry
HeatingNatural Gas, Water Source, Forced Air, Geothermal
AppliancesOven, Ice Maker, Refrigerator, Washer, Dishwasher, Dryer, Disposal, Microwave, Double Oven, Cooktop

Exterior

RoofMetal
ExteriorSprinkler System, Lake Use
Other Featuresn/a
Garage Typen/a
Garage Spaces4

Mortgage Calculator

Est. Mo. Payment:   $1,234.00

Loan Payment
$0000.00
Mortgage Insurance
$0000.00
Taxes
$0000.00
%

This is not a commitment to lend. Not all borrowers will qualify. This is for illustrative purposes only and estimates are based on information you provided. Interest rates, mortgage insurance rates, and programs are subject to credit approval and available rates and terms will vary, sometimes drastically, based on borrower eligibility and program selected. For accurate interest rates and mortgage insurance rates please contact your mortgage consultant. For illustrative purposes FHA/VA and USDA loan amounts will include an estimate for the financed upfront MI amount.

The data relating to real estate for sale or rent on this web site comes in part from participation in IDX of one or more Multiple Listing Services. The listing broker is shown on each property’s page. Some properties which appear for sale on this web site may subsequently have sold or may no longer be available. All information provided is deemed reliable but is not guaranteed and should be independently verified. IDX information is provided for consumers’ personal, non-commercial use, and may not be used for any purpose other than to identify prospective properties consumers may be interested in purchasing. Listing information copyright 2026.

Financing Contact
Copyright © 2026 Nebraska Realty. All rights reserved.       Terms of Service     Privacy Policy     Agent Login   Accessibility Statement