1276 S 14th Circle

Blair NE, 68008
3 Bed
3 Bath
2 Garage
1,314 Sqft

About 1276 S 14th Circle

MLS ID#22528758
Listing courtesy of: Realty ONE Group Authentic


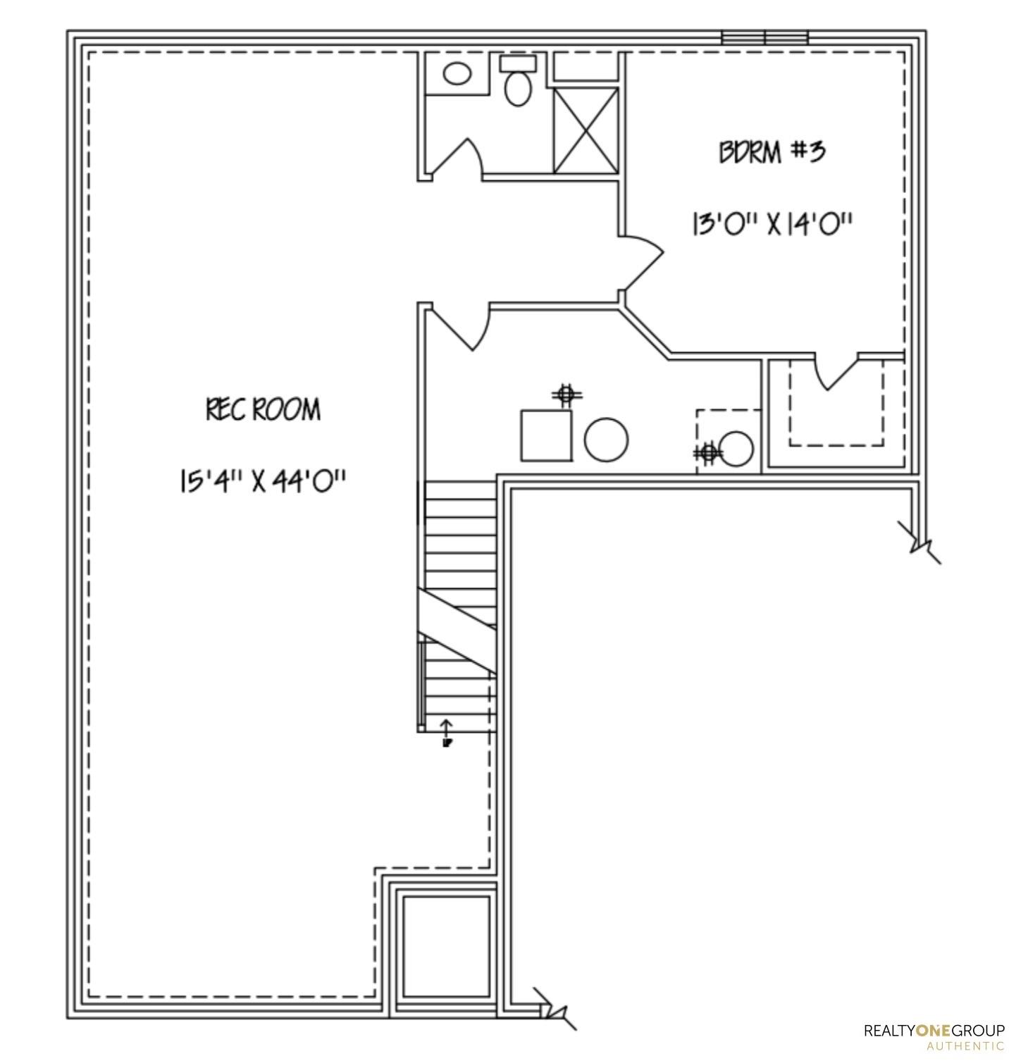
Photos are renderings of future construction. This 2378 Sq Ft Ranch by Orchard Valley Homes is a spacious and thoughtfully designed home that offers both comfort and function. With 1,314 square feet on the main level and an additional 1,064 square feet in the basement, there’s plenty of room to spread out. This layout features an open-concept main living area, ideal for entertaining or everyday living, along with generously sized bedrooms and modern finishes throughout. Designed for a flat lot, this home provides seamless indoor-outdoor living, with options for covered patios to extend your living space. The 2378 Ranch includes a right-facing garage, with some models offering a 3-car garage. Perfect for buyers who want ranch-style ease without sacrificing space or style. Contingent on the buyer entering into a construction contract with Orchard Valley Homes.

Facts & Features

Bedrooms
3 Bedrooms
Bathrooms
3 Bathrooms
Garages
2
Sqft (Total)
1,314 Sqft
Sub Division
Northern View
Year Built
2026
Style
Ranch
School District
Blair
Elementary
Blair
Middle School
Otte Blair
High School
Blair
Builder
Orchard Valley Inc

Interior

CoolingCentral Air
Fireplaces1
Other Featuresn/a
HeatingNatural Gas, Forced Air
Appliancesn/a

Exterior

Roofn/a
ExteriorSprinkler System
Other Featuresn/a
Garage Typen/a
Garage Spaces2

Mortgage Calculator

Est. Mo. Payment:   $1,234.00

Loan Payment
$0000.00
Mortgage Insurance
$0000.00
Taxes
$0000.00
%

This is not a commitment to lend. Not all borrowers will qualify. This is for illustrative purposes only and estimates are based on information you provided. Interest rates, mortgage insurance rates, and programs are subject to credit approval and available rates and terms will vary, sometimes drastically, based on borrower eligibility and program selected. For accurate interest rates and mortgage insurance rates please contact your mortgage consultant. For illustrative purposes FHA/VA and USDA loan amounts will include an estimate for the financed upfront MI amount.

The data relating to real estate for sale or rent on this web site comes in part from participation in IDX of one or more Multiple Listing Services. The listing broker is shown on each property’s page. Some properties which appear for sale on this web site may subsequently have sold or may no longer be available. All information provided is deemed reliable but is not guaranteed and should be independently verified. IDX information is provided for consumers’ personal, non-commercial use, and may not be used for any purpose other than to identify prospective properties consumers may be interested in purchasing. Listing information copyright 2026.

Financing Contact
Copyright © 2026 Nebraska Realty. All rights reserved.       Terms of Service     Privacy Policy     Agent Login   Accessibility Statement